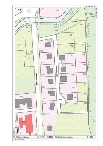
Erwerbbare Baugrundstücke in Ebbinghausen, Sommerricke
Flurstücke 376 und 384
Das Grundstück wird von einem privaten Eigentümer, nicht von der Energiestadt Lichtenau, veräußert. Für weitere Informationen zum Grundstück wenden Sie sich bitte an den Eigentümer unter folgender E-Mail-Adresse: leigh.cronian@cronian.de
Flurstücke 426 und 383
Das Grundstück wird von einem privaten Eigentümer, nicht von der Energiestadt Lichtenau, veräußert. Für weitere Informationen zum Grundstück wenden Sie sich bitte an den Eigentümer unter folgender E-Mail-Adresse: leigh.cronian@cronian.de
